Интерьер недели: квартира 54 м² в Москве для собак, кошки и их хозяев

Олеся Лещенко сравнила свой новый проект с большой книгой о семье. И рассказала, как он создавался

Интерьер недели: квартира 54 м² в Москве для собак, кошки и их хозяев

Краски и декоративная штукатурка, San Marito, Piterra. Кварцвинил Sacramento Avantgarde.T, Thys. Стулья, Divan.ru. Свет, Denkirs. Диван, SoftHome store. Жалюзи, Татьяна Чикильдина. Ковер, Kover.ru. Подушки-подлокотники LO-SABI home, SoftHome store и Олеся Лещенко.

Фото

Евгений Кулибаба. Стиль: Виктория Звонилина

Мои заказчики — просто мечта каждого дизайнера. Они записались на проект за полгода до сдачи квартиры и уже четко понимали, что хотят. Хозяйка вдохновлялась работами Акселя Вервордта, а хозяин дома стремился к практичному современному стилю. Это невероятно милая пара — у них большая семья: дети, собаки и кошка. От них исходит невероятная доброта, такое немосковское спокойствие и тепло.

Интерьер недели: квартира 54 м² в Москве для собак, кошки и их хозяев

Заказчики со своими питомцами.

Фото

Евгений Кулибаба. Стиль: Виктория Звонилина

Хотя интерьер новый и современный, создается ощущение истории, будто здесь живут давно. Все это благодаря «неидеальным» природным фактурам и оттенкам. Квартира похожа на семейную книгу, которую передают из поколение в поколение и читают тихим голосом детям перед сном. Благодаря декоративной штукатурке на стенах и потолке мы смогли достичь эффекта состаренных страниц.

Перед нами стояла сложная задача: сделать уютную детскую для двоих детей (но не в явном «детском» стиле), спальню с рабочим местом, отдельную гардеробную, просторную кухню-гостиную со вторым рабочим местом и зоной отдыха. У собак по имени Хогу и Фифи и у кошки Сури нет каких-то обособленных зон — как полноправные члены семьи они живут там, где хотят.

Интерьер недели: квартира 54 м² в Москве для собак, кошки и их хозяев

Фото

Евгений Кулибаба. Стиль: Виктория Звонилина

Интерьер недели: квартира 54 м² в Москве для собак, кошки и их хозяев

Вазы, Izzi Decor.

Фото

Евгений Кулибаба. Стиль: Виктория Звонилина

Очень живописно и место, где находится дом: из окон открывается прекрасный вид на небо, зелень, на Москву-реку. Квартира очень светлая, но с непростой планировкой. Острые углы, множество окон, из-за которых сложно разместить хранение — с помощью дизайнерских приемов мы превратили эти недостатки в преимущество. Старались использовать каждый квадратный метр!

Есть один секрет: чтобы создать теплую атмосферу, мы стерли границы между потолком и стенами. На потолок наносим ту же краску, но по интенсивности на 20-30% светлее, в зависимости от насыщенности цвета. Если взять абсолютно тот же цвет, то потолок получится темнее стен и создаст давящий эффект.

Интерьер недели: квартира 54 м² в Москве для собак, кошки и их хозяев

Фото

Евгений Кулибаба. Стиль: Виктория Звонилина

Интерьер недели: квартира 54 м² в Москве для собак, кошки и их хозяев

Фото

Евгений Кулибаба. Стиль: Виктория Звонилина

Интерьер недели: квартира 54 м² в Москве для собак, кошки и их хозяев

Фото

Евгений Кулибаба. Стиль: Виктория Звонилина

В спальне находится смысловой центр интерьера — картина «Страницы памяти» Светланы Тория, мастера из Петербурга. Созданная специально для этой замечательной семьи, картина символизирует преемственность поколений. В основе — интерьерные краски San Marito, а слои в разных фактурах пропитаны натуральными красителями. Когда картина приехала, чувствовался манящий аромат кофейных зерен.

Как ткани на картине, каждое новое поколение очень похоже на прошлое, но у каждого свои оттенки — они разные, но вместе идеально складываются в композицию.

Интерьер недели: квартира 54 м² в Москве для собак, кошки и их хозяев

Свет, Denkirs. Кровать и кресло, SoftHome store. Текстиль, Izzi Decor. Картина «Страницы памяти», Светлана Ториа.

Фото

Евгений Кулибаба. Стиль: Виктория Звонилина

Интерьер недели: квартира 54 м² в Москве для собак, кошки и их хозяев

Фото

Евгений Кулибаба. Стиль: Виктория Звонилина

В небольшой комнате нужно было продумать места для двоих детей. Хранение расположили вдоль стен, а рабочее место получили, продлив подоконник. Так что здесь отлично помещаются и книги, и одежда, и другие предметы. В откосах — розетки, чтобы в новогодние праздники можно было украсить комнату. А еще, присмотритесь, здесь есть портреты любимых питомцев!

Интерьер недели: квартира 54 м² в Москве для собак, кошки и их хозяев

Стулья, Divan.ru. Картина, Reloft Art. Ковер, Kover.ru.

Фото

Евгений Кулибаба. Стиль: Виктория Звонилина

Интерьер недели: квартира 54 м² в Москве для собак, кошки и их хозяев

Лампы, Izzi Decor.

Фото

Евгений Кулибаба. Стиль: Виктория Звонилина

Вместо керамогранита в санузле на стенах микроцемент — намокая, он становится похож на замшевое покрытие. Рядом с душевой — декоративная лесенка для полотенец, за которой находится теплая стена.

Интерьер недели: квартира 54 м² в Москве для собак, кошки и их хозяев

Аксессуары для ванной, Bergenson Bjorn. Плитка на полу Continuum Pure, Italon. Микроцемент, Microdec.

Фото

Евгений Кулибаба. Стиль: Виктория Звонилина

Нужно было продумать и вход для кошки: оставлять дверь приоткрытой в проходе — совсем не вариант. Поэтому мы придумали специальную дверцу снизу. С ней получилась забавная история: монтажники сначала ее не приняли — думали, что дверь пришла с браком. Мы целую неделю пытались понять, что с ней не так, но заказали ее снова. Как же удивились монтажники, когда им снова привезли «бракованную» дверь!

Интерьер недели: квартира 54 м² в Москве для собак, кошки и их хозяев

Двери, «Академия дверей».

Фото

Евгений Кулибаба. Стиль: Виктория Звонилина

Контакты: дизайнер Олеся Лещенко, LO Design, https://lo-design.ru/, т. +7 (911) 965-66-53

Интерьер недели: квартира 54 м² в Москве для собак, кошки и их хозяев

Дизайнер Олеся Лещенко.

Фото

Евгений Кулибаба. Стиль: Виктория Звонилина

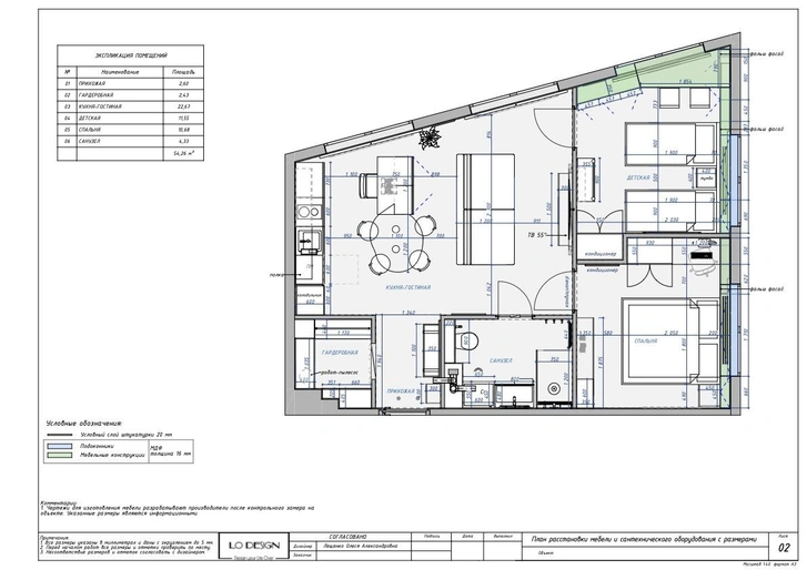
Интерьер недели: квартира 54 м² в Москве для собак, кошки и их хозяев

План квартиры 54,26 кв. м. Проект Олеси Лещенко.

Алиса ХаритонТегидо 60 квмМосква
Источник

Добавить комментарий