Дизайнеры бюро TaupeHome рассказывают о новом большом доме с террасами, бассейном и собственным лифтом. За окнами — вид на горы и тропический сад, эту близость к природе отразили и в интерьерах

Фото
Сергей Красюк. Стиль: Дарья Ишкараева
Заказчики хотели создать просторную резиденцию для большой семьи, их место силы. За окнами открывается вид на горы и тропический сад — эту природную легкость мы отразили и в интерьере. Здесь нет избыточных деталей, только «тихая роскошь».
В доме три этажа, несколько террас и бассейн, есть и свой лифт. По своей архитектуре здание было непростым: стоечно-ригельная система, длинные коридоры, сложная геометрия… Все это поначалу казалось минусами, но их превратили в плюсы, найдя выразительные решения. Мы не скрывали конструктив, наоборот — сделали его частью композиции, смягчив линии и выделив ритм.

Стол, Calligaris. Люстры, Eichholtz. Стулья в столовой, My Barli.
Фото
Сергей Красюк. Стиль: Дарья Ишкараева
Пространство перекроили полностью — демонтировали перегородки и выстроили новые стены, полностью адаптировав планировку под семью; учли и видовые оси. Палитра получилась спокойная, но не лишенная акцентов: светлые оттенки серо-зеленого и терракотового, серо-голубого, оттенки камня, дерева, песка. Оживили интерьер тактильные природные фактуры.

Диваны и журнальные столики в гостиной, Eichholtz. Бра, Sebastian Herkner.
Фото
Сергей Красюк. Стиль: Дарья Ишкараева

Фото
Сергей Красюк. Стиль: Дарья Ишкараева
На первом этаже сформировали парадный входной холл с лестницей, просторную гостиную-столовую с панорамными окнами и кухню с акцентным витражом. Витраж стал небольшой связующей деталью с городской квартирой заказчиков, которую тоже оформляло наше бюро.

Фото
Сергей Красюк. Стиль: Дарья Ишкараева

Стулья, Cazarina.
Фото
Сергей Красюк. Стиль: Дарья Ишкараева

Фото
Сергей Красюк. Стиль: Дарья Ишкараева
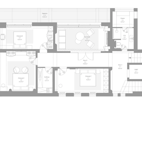
Второй этаж полностью отдан детям: здесь три спальни с выходами на террасу и детская гостиная с камином. Необычный и в то же время лаконичный акцент — скругленные углы стен, придающие интерьеру плавность, спокойствие и в то же время динамику.

Кровать, My Barli.
Фото
Сергей Красюк. Стиль: Дарья Ишкараева

Кресла, Eichholtz.
Фото
Сергей Красюк. Стиль: Дарья Ишкараева

Кровать и вся корпусная мебель в проекте, My Barli.
Фото
Сергей Красюк. Стиль: Дарья Ишкараева

Стул, Calligaris.
Фото
Сергей Красюк. Стиль: Дарья Ишкараева
Особенно нам нравится лепной декор на потолке во второй гостиной — он изображает лучи местного солнца. Его нежность поддерживает диван цвета соленой карамели.

Журнальные столики, Cattelan Italia.
Фото
Сергей Красюк. Стиль: Дарья Ишкараева

Диван, My Barli.
Фото
Сергей Красюк. Стиль: Дарья Ишкараева

Кресла, Alky (Giancarlo Piretti). Камин, My Barli.
Фото
Сергей Красюк. Стиль: Дарья Ишкараева
На третий этаж ведет изящная лестница с парящими ступенями.

Фото
Сергей Красюк. Стиль: Дарья Ишкараева
Верхний этаж занимает мастер-блок родителей со спальней, кабинетом, ванной и большой террасой, где есть летняя кухня и место для отдыха. Благодаря перепланировке это пространство получилось светлым и открытым, но в то же время удалось сохранить его приватность и уют.

Кровать и банкетка, My Barli. Прикроватные тумбы, Praddy. Свет, «Центрсвет».
Фото
Сергей Красюк. Стиль: Дарья Ишкараева

Консоль, My Barli.
Фото
Сергей Красюк. Стиль: Дарья Ишкараева

В родительской части дома есть сауна — особое пожелание заказчиков.
Фото
Сергей Красюк. Стиль: Дарья Ишкараева

Фото
Сергей Красюк. Стиль: Дарья Ишкараева
Каждая зона, каждая комната имеет свой характер, но вместе они образуют целостную картину, наполненную спокойствием и воздухом.

Стол, Calligaris.
Фото
Сергей Красюк. Стиль: Дарья Ишкараева

Фото
Сергей Красюк. Стиль: Дарья Ишкараева
Контакты: бюро TAUPEHOME, т. +7 (921) 949-83-00, https://taupe-home.ru/, info@taupe-home.ru



Алиса ХаритонТегибольше 120 квмзагородный домРоссия
Источник